08/01/2019
W projektach budowlanych, szczególnie w części dotyczącej stolarki okiennej i drzwiowej, można natknąć się na wiele skrótów i oznaczeń, które na pierwszy rzut oka mogą wydawać się niezrozumiałe. Jednym z nich jest HP. Co on oznacza i dlaczego jest tak ważny w kontekście budowy domu? W tym artykule wyjaśnimy znaczenie skrótu HP w projekcie budowlanym, bazując na informacjach zawartych w dokumentacji projektowej ARCHON+.

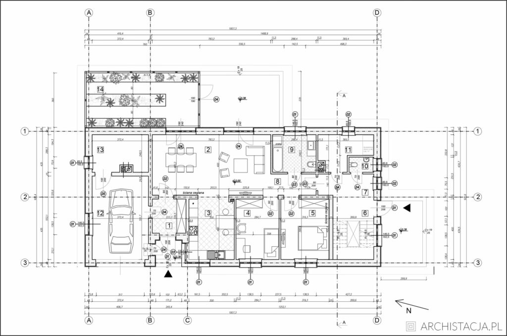
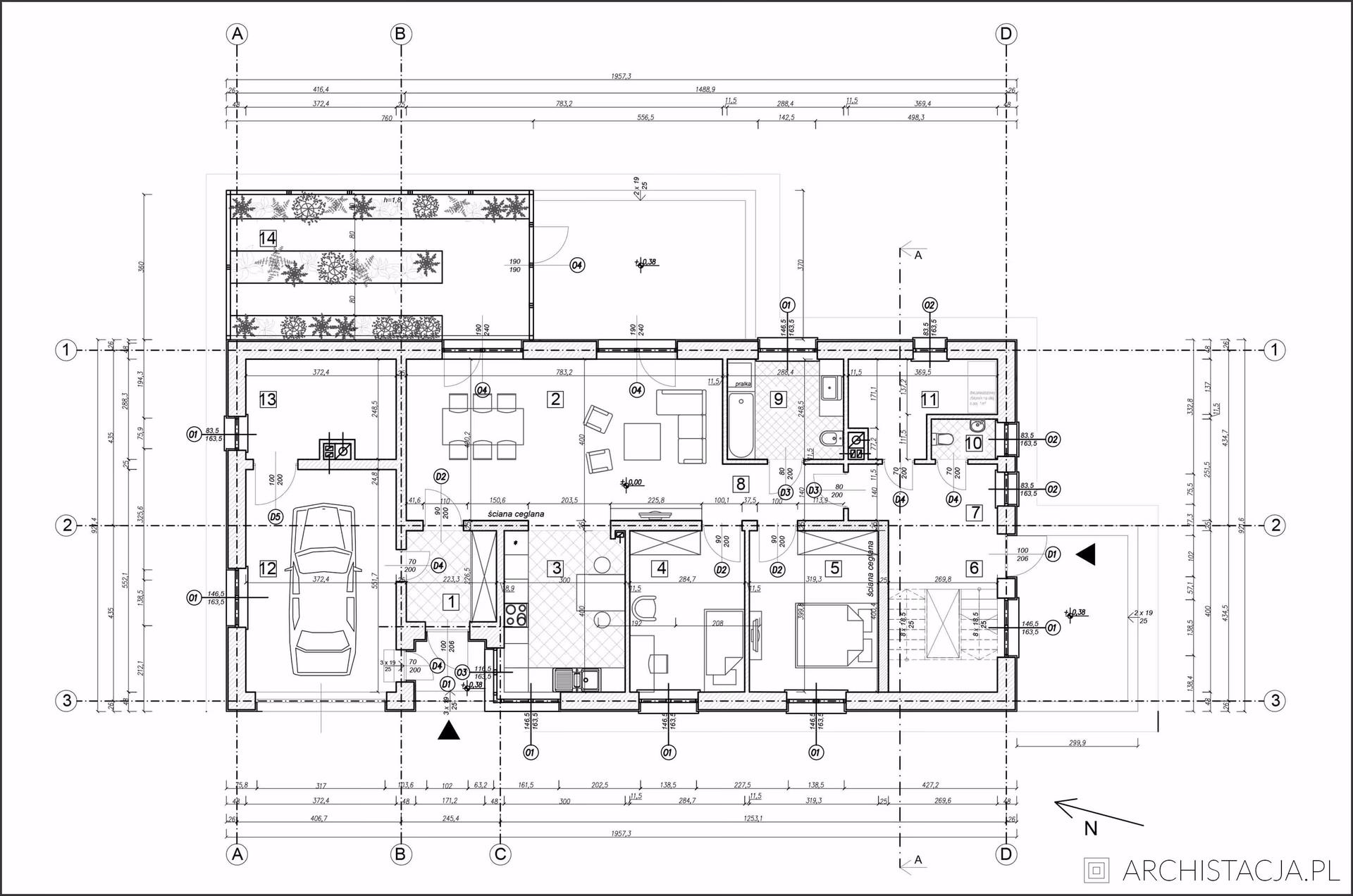
Co oznacza skrót HP? Wysokość parapetu w projekcie
Skrót HP w projekcie budowlanym oznacza wysokość parapetu. Jest to kluczowy wymiar, który określa odległość pomiędzy wykończoną podłogą a dolną krawędzią otworu okiennego lub drzwiowego w ścianie, tuż pod parapetem. Innymi słowy, HP definiuje, na jakiej wysokości od podłogi zostanie umieszczony parapet w Twoim domu.
W dokumentacji projektowej ARCHON+, przykładem jest oznaczenie Hp= 90. Oznacza to, że wysokość parapetu została zaprojektowana na 90 cm nad poziomem wykończonej podłogi. Ta wartość jest istotna z wielu powodów, zarówno funkcjonalnych, jak i estetycznych.
Gdzie znaleźć informację o HP w projekcie?
Informacje dotyczące wysokości parapetów (HP) zazwyczaj znajdziesz w części projektu poświęconej stolarce okiennej i drzwiowej. Szukaj oznaczeń przy rysunkach okien i drzwi na rzutach kondygnacji. Często zestawienia stolarki, które są oddzielnymi kartami dokumentacji, również zawierają te informacje.

Warto dokładnie przeanalizować rysunki rzutów oraz zestawienia stolarki, aby upewnić się, jakie wysokości parapetów zostały przewidziane dla poszczególnych okien i drzwi w Twoim domu. Pamiętaj, że wymiary podane w projekcie dotyczą otworów w ścianach w stanie surowym.
Dlaczego wysokość parapetu (HP) jest ważna?
Wysokość parapetu ma wpływ na kilka aspektów użytkowania domu:
- Ergonomia i komfort użytkowania: Wysokość parapetu wpływa na komfort korzystania z okna, szczególnie jeśli planujesz umieścić pod nim meble, takie jak biurko czy szafka. Zbyt niski parapet może utrudniać ustawienie mebli, a zbyt wysoki może ograniczać widok z okna, szczególnie dla osób niższych.
- Dostęp światła naturalnego: Wysokość parapetu, w połączeniu z wysokością okna, wpływa na ilość światła naturalnego wpadającego do pomieszczenia. Niższe parapety zazwyczaj pozwalają na lepsze doświetlenie wnętrza.
- Estetyka wnętrza i elewacji: Jednolita wysokość parapetów w całym domu może wpływać na estetyczny wygląd zarówno wnętrz, jak i elewacji budynku. Różne wysokości parapetów, choć czasami uzasadnione funkcjonalnie, mogą wprowadzić wizualny chaos.
- Montaż stolarki okiennej: Znajomość wysokości parapetu jest kluczowa dla prawidłowego montażu okien. Ekipy montażowe muszą wiedzieć, na jakiej wysokości osadzić okno w otworze, aby parapet znalazł się na właściwym poziomie po wykończeniu podłóg.
Inne istotne oznaczenia w projekcie budowlanym
Oprócz HP, projekt budowlany zawiera wiele innych oznaczeń, które pomagają w zrozumieniu planów i prawidłowej realizacji budowy. Warto znać znaczenie kilku z nich, aby móc efektywnie komunikować się z architektem, kierownikiem budowy i wykonawcami.
Oznaczenia ścian
- Ściany nośne: W projektach ARCHON+ ściany nośne zaznaczane są kolorem czerwonym. Są to kluczowe elementy konstrukcyjne budynku, przenoszące obciążenia. Jakiekolwiek zmiany w ścianach nośnych wymagają korekty w dokumentacji technicznej przez osobę z odpowiednimi uprawnieniami.
- Ściany działowe: Ściany działowe oznaczone są kolorem zielonym. Służą do wydzielania pomieszczeń i ich lokalizacja jest bardziej elastyczna. Zmiany w ścianach działowych są zazwyczaj łatwiejsze do wprowadzenia, nawet na etapie budowy.
Oznaczenia okien i drzwi
- Wymiary okien: Wymiary okien podawane w projekcie, np. 90/120, określają szerokość i wysokość otworu okiennego w stanie surowym.
- Wymiary drzwi: Wymiary drzwi dotyczą zazwyczaj otworu futryny drzwiowej, czyli wymiaru skrzydła drzwiowego.
Oznaczenia schodów
- Oznaczenia schodów: Przy schodach spotkasz oznaczenia w formacie n×h×s, np. 12×18.5×26 cm. Oznaczają one kolejno: n - ilość stopni, h - wysokość stopni, s - szerokość stopni. Strzałka przy schodach wskazuje kierunek wznoszenia się.
Oznaczenia kominów
- Kanał dymowy: Symbol kanału dymowego oznacza przewód kominowy przeznaczony dla kominka lub pieca CO na paliwo stałe.
- Kanał spalinowy: Oznacza kanał przeznaczony dla pieca CO gazowego.
- Kanały wentylacyjne: Symbole kanałów wentylacyjnych oznaczają przewody wentylacyjne.
Pytania i odpowiedzi (FAQ)
Co zrobić, jeśli chcę zmienić wysokość parapetu w projekcie?
Zmiany wysokości parapetów są możliwe na etapie adaptacji projektu. Skonsultuj się z architektem adaptującym projekt. Ważne jest, aby zmiany te uwzględniały aspekty funkcjonalne, estetyczne oraz konstrukcyjne budynku.
Gdzie znajdę informacje o materiałach użytych do budowy ścian zewnętrznych?
Informacje o warstwach ścian zewnętrznych znajdziesz w opisie technicznym projektu, na rzutach parteru oraz na przekrojach. W ramach adaptacji projektu, możesz zmienić materiały, ale ważne jest, aby nowe materiały nie miały gorszych parametrów wytrzymałościowych i izolacyjnych.

Jak odróżnić ścianę nośną od działowej na rzucie?
Na rzutach projektu ARCHON+ ściany nośne zaznaczone są kolorem czerwonym, a ściany działowe kolorem zielonym. Pamiętaj, że modyfikacje ścian nośnych są bardziej skomplikowane i wymagają ingerencji w konstrukcję budynku.
Co oznaczają wymiary okna 90/120 w projekcie?
Wymiary 90/120 oznaczają szerokość i wysokość otworu okiennego w ścianie w stanie surowym. Warto pamiętać, że są to wymiary otworu, a nie ramy okiennej.
Zrozumienie oznaczeń i skrótów w projekcie budowlanym, takich jak HP, jest kluczowe dla sprawnego przebiegu budowy i uniknięcia błędów. Dokładna analiza dokumentacji projektowej, w tym rzutów, przekrojów i opisów technicznych, pozwoli Ci lepiej zrozumieć planowany dom i świadomie podejmować decyzje na każdym etapie budowy. W razie wątpliwości, zawsze warto skonsultować się z architektem lub kierownikiem budowy.
Jeśli chcesz poznać inne artykuły podobne do Co oznacza HP w projekcie budowlanym?, możesz odwiedzić kategorię HVAC.
