06/09/2021
Wybór odpowiedniego systemu wentylacji z odzyskiem ciepła, czyli rekuperacji, to kluczowa decyzja dla każdego właściciela domu, zarówno nowego, jak i modernizowanego. Komfort, zdrowie mieszkańców i oszczędności energetyczne to tylko niektóre z korzyści płynących z dobrze dobranej rekuperacji. Jeśli zastanawiasz się, jaki rekuperator wybrać do domu o powierzchni 100m2 lub 120m2, ten artykuł jest dla Ciebie. Przyjrzymy się najważniejszym aspektom, które należy wziąć pod uwagę, aby podjąć najlepszą decyzję.

Dobór rekuperatora do domu 120m2: Kluczowe czynniki
Powierzchnia domu, w tym przypadku 120m2, jest fundamentalnym parametrem przy doborze centrali wentylacyjnej. To właśnie ona, w połączeniu z kubaturą budynku, determinuje obliczeniowy strumień powietrza wentylacyjnego, czyli ilość powietrza, jaką rekuperator powinien wymieniać w ciągu godziny. Jednak nie jest to jedyny czynnik, na który należy zwrócić uwagę.
Inne istotne parametry doboru rekuperatora:
- Rozplanowanie i przeznaczenie pomieszczeń: Czy w domu znajduje się otwarta kuchnia połączona z salonem? Ile jest sypialni? Przeznaczenie pomieszczeń wpływa na zapotrzebowanie na wentylację w poszczególnych strefach domu.
- Liczba mieszkańców: Im więcej osób zamieszkuje dom, tym większe zapotrzebowanie na świeże powietrze. Należy uwzględnić standardową liczbę domowników oraz ewentualnych gości.
- Klasa energetyczna centrali: Rekuperator powinien być energooszczędny, aby minimalizować koszty eksploatacji. Warto zwrócić uwagę na klasę energetyczną urządzenia i jego współczynnik SFP (Specific Fan Power).
- Generowany hałas: Komfort akustyczny jest niezwykle ważny. Wybieraj rekuperatory o niskim poziomie hałasu, szczególnie jeśli centrala będzie umieszczona w pobliżu pomieszczeń mieszkalnych. Sprawdź parametr poziomu mocy akustycznej LWA.
- Automatyka sterująca: Nowoczesne rekuperatory oferują zaawansowane systemy sterowania, w tym możliwość programowania harmonogramów, sterowania za pomocą smartfona, tabletu, a nawet integracji z systemem inteligentnego domu. Rozważ funkcje takie jak sterowanie przepływem powietrza w zależności od stężenia CO2 lub wilgotności.
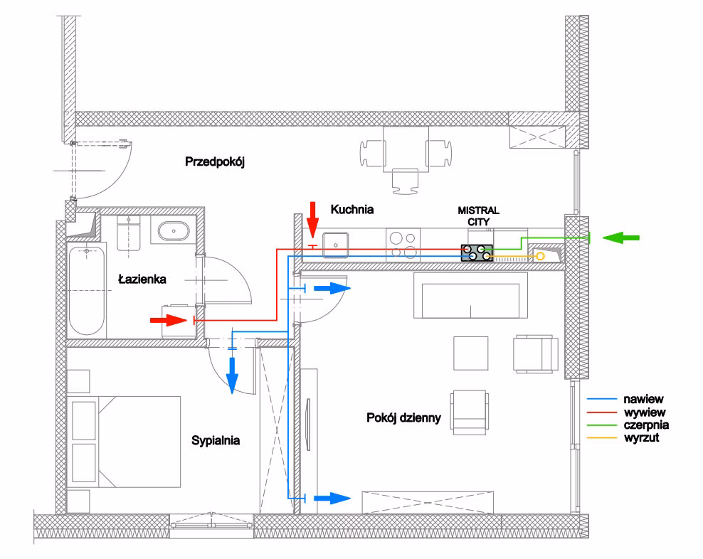
- Rodzaj instalacji dystrybucji powietrza: Rekuperator musi być kompatybilny z planowaną instalacją kanałów wentylacyjnych. Należy uwzględnić średnice i rodzaj kanałów.
- Lokalizacja rekuperatora w budynku: Miejsce montażu centrali (strych, poddasze nieogrzewane, pomieszczenie gospodarcze) wpływa na wymagania dotyczące izolacji termicznej i akustycznej urządzenia.
- Rodzaj wymiennika ciepła: Najpopularniejsze są rekuperatory z odzyskiem ciepła. Wybór rodzaju wymiennika (przeciwprądowy, krzyżowy, obrotowy, entalpiczny) ma wpływ na sprawność odzysku ciepła i wilgoci. Warto rozważyć wymiennik entalpiczny, który odzyskuje wilgoć, co jest korzystne szczególnie zimą.
Wydajność rekuperatora dla domu 120m2
Dla domu o powierzchni 120m2, maksymalny obliczeniowy strumień powietrza zazwyczaj mieści się w przedziale 300-350 m3/h. Konkretna wartość zależy jednak od wyżej wymienionych czynników. Dlatego, aby dokładnie określić potrzebną wydajność, najlepiej skonsultować się z projektantem instalacji wentylacyjnych. Specjalista, na podstawie obowiązujących przepisów i warunków technicznych, obliczy zapotrzebowanie na świeże powietrze i pomoże dobrać rekuperator o odpowiedniej wydajności.
Rekuperacja do domu 100m2: Komfort i oszczędności
Marzysz o domu, w którym zawsze panuje świeże powietrze, a rachunki za ogrzewanie są niższe? Rekuperacja jest odpowiedzią na te potrzeby. Wybór odpowiedniego rekuperatora do domu 100m2 to inwestycja w zdrowie, komfort i oszczędności.
Dlaczego warto zainwestować w rekuperację?
- Świeże i czyste powietrze: Rekuperator stale wymienia powietrze w domu, usuwając zanieczyszczenia, alergeny, kurz i nadmiar wilgoci. Dzięki filtrom powietrze nawiewane do domu jest oczyszczone.
- Oszczędności energii: Rekuperacja odzyskuje ciepło z powietrza wywiewanego, ogrzewając powietrze nawiewane. Dzięki temu straty ciepła są minimalizowane, co przekłada się na niższe rachunki za ogrzewanie.
- Zdrowy mikroklimat: Stała wymiana powietrza zapobiega gromadzeniu się dwutlenku węgla, wilgoci i innych zanieczyszczeń, tworząc zdrowe i komfortowe warunki do życia. Jest to szczególnie ważne w szczelnych, nowoczesnych domach, gdzie naturalna wentylacja jest ograniczona.
Jak wybrać rekuperator do domu 100m2?
Podobnie jak w przypadku domu 120m2, wybór rekuperatora do domu 100m2 wymaga uwzględnienia kilku kluczowych parametrów. Wydajność rekuperatora powinna być dostosowana do kubatury budynku i liczby mieszkańców. Dla domów o powierzchni około 100m2, najczęściej stosowane są rekuperatory o przepływie powietrza w zakresie 250-450 m3/h. Pamiętaj, że dokładne obliczenia powinien wykonać projektant.

Kluczowe parametry rekuperatora:
- Wydajność: Dopasowana do wielkości domu i liczby mieszkańców.
- Sprawność odzysku ciepła: Im wyższa sprawność, tym większe oszczędności energii. Warto wybierać rekuperatory o sprawności powyżej 90%.
- Izolacja termiczna i akustyczna: Szczególnie ważna, jeśli rekuperator będzie umieszczony na strychu lub poddaszu. Dobrze izolowany rekuperator to mniejsze straty ciepła i cichsza praca.
- Funkcje dodatkowe: Niektóre rekuperatory oferują dodatkowe funkcje, takie jak chłodzenie powietrza latem (free-cooling), nagrzewnica wstępna chroniąca przed zamarzaniem wymiennika, czy czujniki jakości powietrza.
- Filtry powietrza: Wysokiej jakości filtry (np. klasy M5, F7) zapewniają czyste powietrze w domu, zatrzymując kurz, pyłki i alergeny. Niektóre rekuperatory oferują filtry antysmogowe lub antybakteryjne.
- Możliwość podłączenia dodatkowych urządzeń: Sprawdź, czy rekuperator można podłączyć do gruntowego wymiennika ciepła (GWC) lub systemu inteligentnego domu.
- Wielkość i umiejscowienie jednostki: Upewnij się, że rekuperator zmieści się w miejscu, które dla niego przewidziałeś.
- Wyświetlacz i sterowanie: Intuicyjny panel sterowania lub aplikacja mobilna ułatwiają obsługę rekuperatora.
Przykładowe rekuperatory dla domów 100m2 i 200m2
Aby ułatwić Ci wybór, przedstawiamy kilka popularnych modeli rekuperatorów, odpowiednich dla domów o powierzchni 100m2 i 200m2.
Rekuperatory do domu 100m2:
| Model | Wydajność max. (m3/h) | Wymiennik ciepła | Dodatkowe funkcje |
|---|---|---|---|
| Thessla Green AirPack Home 300h Energy | 300 | Przeciwprądowy | Bypass, filtry M5, moduł Basic |
| Wanas BLACK 200V_E | 200 | Entalpiczny | Sterowanie internetem, Modbus RTU, nagrzewnica SMART HEATER, Bypass 100% |
| Komfovent Domekt R-250-F-C6 | 250 | Obrotowy | Automatyka C6, zdalne wsparcie serwisowe, aplikacja mobilna |
Rekuperatory do domu 200m2:
| Model | Wydajność max. (m3/h) | Wymiennik ciepła | Dodatkowe funkcje |
|---|---|---|---|
| Thessla Green AirPack Home 500v Energy+ | 500 | Przeciwprądowy | System kontroli przepływu powietrza, filtry CleanPad Pure, funkcja przeciwzamrożeniowa |
| Pro-Vent Mistral Smart 400 EC | 400 | Przeciwprądowy | Automatyczny bypass, zaawansowane sterowanie, cicha praca |
| Wanas Hi-Tech 415-E entalpiczny | 415 | Entalpiczny | Sterowanie WiFi, Modbus RTU, energooszczędne wentylatory EC, automatyczny bypass |
Jak ocenić wydajność rekuperatora?
Wydajność rekuperatora jest kluczowa dla prawidłowej wentylacji domu. Określa się ją na podstawie obliczeń zapotrzebowania budynku na świeże powietrze. Jak już wspomniano, objętość strumienia powietrza zależy od powierzchni, kubatury i liczby mieszkańców. Obliczenia wydajności rekuperatora powinien wykonać wykwalifikowany projektant, który uwzględni wszystkie istotne czynniki i obowiązujące przepisy.
Podsumowanie
Wybór rekuperatora do domu 100m2 lub 120m2 to ważna decyzja, która wpływa na komfort, zdrowie i finanse. Kieruj się powierzchnią domu, liczbą mieszkańców, preferencjami dotyczącymi funkcji dodatkowych i oczywiście budżetem. Nie bagatelizuj konsultacji z projektantem instalacji wentylacyjnych, który pomoże Ci dobrać optymalne rozwiązanie. Pamiętaj, że inwestycja w rekuperację to inwestycja w przyszłość Twojego domu i komfort życia Twojej rodziny.
Jeśli chcesz poznać inne artykuły podobne do Rekuperator do 100 i 120m2: Jaki Wybrać?, możesz odwiedzić kategorię Wentylacja.
